Autor: Carlos Sánchez-Montaña
viernes, 28 de abril de 2006
						Sección: Etnografía
						Información publicada por: lucusaugusti
						
						
Mostrado 76.926 veces.
De Lares y Julianes
El análisis arquitectónico de los templos de San Julián y su comparativa con las plantas de los templos toscanos vitruvianos permite afirmar que algunas de las edificaciones prerrománicas fueron levantadas utilizando la cimentación preexistente de antiguos templos romanos emplazados en el cruce de caminos.
Los Lares Viales
Los romanos en la antigüedad rendían en las encrucijadas de los caminos culto a los Lares, eran los Lares divinidades de carácter menor que favorecían y acompañaban en la relación de los hombres con lo divino (imagen1) y que se mostraban a estos en los cruces de caminos. Eran las encrucijadas lugares de intermediación entre lo ordenado, como representación de Logos, y de la naturaleza como representación del Caos.

Templo a los Lares 
Templo doméstico a los Lares en la domus Romana de Augusta Raurica
Hasta el final de la republica estos Lares recibían el nombre de Lares Compitales. La palabra compita significa cruce, y designaba las encrucijadas que delimitaban las propiedades agrícolas entre sí y con los caminos. 
Los devotos se llegaban a las encrucijadas para conciliar con sus ofrendas la protección de estas divinidades del lugar,  solicitaban protección para los campos sementados del vecindario, protección para los enfermos, para los niños, para los caminantes.
Octavio Augusto hizo revivir en Roma las fiestas de estos Lares Compitales, y modificó el antiguo culto de carácter estrictamente rural introduciendo sus altares en 265 cruces de las vías principales de Roma. Los Lares Compitales pasaron a ser acompañantes de los ciudadanos en las encrucijadas urbanas. Se erigieron según las instrucciones del emperador capillas o altares en los cruces designados, y próximos a estos se instalaron bancos para sentarse y meditar. (imagen 2)

Lares 
Altar a los Lares en Marmol. Roma  
Augusto, durante el imperio, favoreció el establecimiento en Roma de estos altares en las vías urbanas pasando a recibir sus protectores de manera exclusiva el nombre de Lares Compitales.
Igualmente, y de manera simultanea, en las nuevas vías abiertas tras la conquista de los territorios del norte de Hispania, estableció los “nuevos” Lares Viales, que se encargaban de prestar protección a los viajeros que transitaban estos caminos.
Los Lares Viales adquirieron parte de las características de los antiguos Lares Compitales y recayó en ellos la protección de los caminantes en dirección a su destino. Los templos a estas divinidades estaban emplazados en los cruces de caminos y en algún caso próximos a puentes sobre ríos. (imagen 3)

Ara a los Lares Viales en Mediolanum 
Es notoria la alta concentración es de elementos epigráficos que existe en la antigua Gallaecia dedicados a los Lares Viales. Se podría decir que el emperador Octavio Augusto se preocupó de igual manera por señalar los cruces de las calles de la ciudad de Roma y a la vez los caminos que llevaban a la Gallaecia.
De las 36 epigrafías conocidas dedicadas a los Lares Viales en todo el imperio, el 77% de ellas han sido encontradas en el noroeste peninsular y del total el 52% en territorio del antiguo convento Lucense.
Si Roma, como ciudad sagrada, debía a este carácter divino su abundancia a encrucijadas augusteas, no es de extrañar que el convento lucense, cuyo nombre proviene  de Lucus, bosque sagrado, tenga el mayor número de encrucijadas sagradas.
Estos templos dedicados a los Lares Viales y situados en cruces de caminos o puentes a lo largo del trayecto eran, en su gran mayoría, del estilo toscano; poseían un atrio cubierto anterior a la cella, que permite guarecerse a los caminantes. De esta manera los Lares no solo ofrecían protección espiritual a los caminantes, sino que permitían una protección física frente a las inclemencias de la climatología. 
Dice Vitruvio en su tratado sobre arquitectura en lo referente a la orientación de los templos situados en los caminos; “si cerca de los caminos públicos, (los templos) se pondrán de suerte que los pasajeros, vean la puerta y puedan hacer sus acatamientos”. Señala que desde el camino se podrá observar directamente la puerta del templo y así hacer directamente el acceso sin rodeos. A la vez la divinidad podrá contemplar a los viajeros y ofrecerles su protección.
Los Lares son representados como jóvenes, si son hombres, imberbes, con túnicas cortas y que en algunos casos presentan caduceos o varas en sus manos.
San Julián, el Hospitalario
En la edad media y por acción del cristianismo estos lugares sagrados dedicados a los Lares Viales se ofrecieron  en su mayor parte a  San Julián, El Hospitalario.  Patrón de remeros, barqueros, peregrinos y hoteleros.
Su iconografía es la de un joven imberbe vestido como caballero romano y con una espada en una de sus manos. Su vestimenta es de color rojo. (imagen 4-5)

San Julián 

San Julián 
Imágenes de San Julián el Hospitalario 
Leyenda de San Julián, el hospitalario:
“También llamado el Pobre, buenos apelativos para un personaje seguramente de leyenda, que vive fuera del tiempo histórico y que a menudo se confunde con otro Julián que fue mártir y que no tiene nada que ver con él. El Hospitalario, patrón de los posaderos, dio su nombre a numerosas iglesias, hospitales y asilos, y se le evoca por dramáticas vicisitudes en las que la imaginación se inclina del lado de la santidad.
Según la Leyenda Dorada fue un caballero a quien en una cacería el ciervo acosado predijo que daría muerte a sus padres. Para evitar que sucediera tal cosa huyó de los suyos y entró al servicio de un lejano rey, y éste, como premio de sus hazañas guerreras, le casó con una noble viuda y le regaló un castillo.
A él llegaron un día los desconsolados padres, que peregrinaban en busca del hijo perdido, su mujer adivinó quiénes eran y para agasajarles les cedió su propia alcoba. Lo cual fue causa de un trágico error, ya que engañado por las apariencias y creyendo sorprender a la esposa en adulterio flagrante, Julián atravesó con su espada a los dos ocupantes del lecho.
Más tarde, ante el horror de su acción, para hacer penitencia se retiró con su fiel esposa a orillas de un río y allí construyó una hospedería con objeto de socorrer por amor de Dios a los caminantes sin amparo. Muchos años después, Julián prestó ayuda a un aterido leproso que parecía al borde de la muerte, pero que de pronto, resplandeciente de luz y de hermosura, se levantó para anunciarle que Dios le había perdonado.”
http://sagradafamilia.devigo.net/santoral/febrero/12febrero.htm
Estamos una vez más ante una directa cristianización de una creencia pagana en un culto cristiano, las similitudes iconográficas que existen entre una imagen de los Lares Viales y San Julián no deja de ser sorprendente, jóvenes imberbes con similares ropajes y caduceos o espadas en su mano. (imagen 6)

Imágenes comparativas de San Julián el Hospitalario y un Lar romano 
No debemos de despreciar las características de protección que a los viajeros y peregrinos ofrecen ambos, siendo de manera directa sus santuarios lugares de protección frente a los peligros que acechan en los caminos.
Y por último la abundante presencia de sus santuarios en las encrucijadas de los caminos, para ofrecer su protección a los peregrinos que los recorren.
Las capillas de San Julián o de San Xiao (en Gallego), coinciden con muchos de los lugares donde han aparecido piezas epigráficas pertenecientes a los Lares Viales. 
Los caminos que conducen al convento lucense, donde además de su capital, la ciudad de Lucus Augusti, también se encuentra el Finis Térrae, el actual Finisterre, el medieval “Locus Sanctus” de Santiago de Compostela y el aun más antiguo rió Miño, cuya etimología nos recuerda el sentido de anunciar "Dios entre nosotros".  Son los lugares donde no solo han aparecido más de la mitad de todas las inscripciones a los Lares Viales del imperio, sino en donde permanecen la mayor parte de los templos a San Julián, el Hospitalario, de la península.
La certeza de que las tierras que soportan las diversas capillas de San Julián o San Xiao son las mismas que hace dos mil años soportaron un templo de origen romano lo podemos comprar en muchos caminos que conducen al convento lucense, hacía el oeste.
Templo de San Julián en el Puente de Alcántara
Los Romanos dedicaron el puente a Trajano y a los dioses y para ello levantaron en el centro del mismo el Arco de trajano y El Templo de San Julián en la cabecera del puente. Es un pequeño templo con 5,86 metros de largo, 4,10 de ancho y 6,61 de alto con dos columnas toscanas a ambos lados, de piedra de granito y techumbre a dos vertientes. Su planta es rectangular y pertenece al sencillo templo del tipo "in antis" (imagen 7-8-9)

Templo romano de San Julián en el puente de Alcantara
Es un pequeño templo de estilo toscano con 5,86 metros de largo, 4,10 de ancho y 6,61 de alto con dos columnas toscanas a ambos lados, de piedra de granito y techumbre a dos vertientes. Su planta es rectangular y pertenece al sencillo templo del tipo "in antis"
Ampliación del texto latino
Está precedido de escalinata. En la puerta tiene dos columnas toscanas, las cuales, y las molduras de su cornisa y frontón son los únicos adorno que ofrece la fabrica, que es de sillería almohadillada, del mismo estilo constructivo que el puente y repetido frecuentemente por los romanos en todas las construcciones y fue discretamente restaurado por Alejandro Millán, que también restauró por arte del puente en 1856, en tiempos de Isabel II, pero sin que los monumentos perdieran para nada su absoluta e intangible originalidad romana, cerrando la puerta del templo con una verja de bronce. 
El interior lo constituye una capilla o "cella", con huellas de haber estado dividido en dos compartimentos, "naos" y "pronaos". En él está enterrado el arquitecto que construyó el puente y el templo, Cayo Julio Lácer, con una inscripción en la cual se lee, entre otras cosas, "seale la tierra leve".
En el frontispicio del templo de San Julián hay una bella inscripción en latín que traducida al castellano, dice lo siguiente:
"Este templo en la roca del Tajo, de los supremos dioses y del César lleno, donde el arte se ve vencido por su propio objeto, quizás la curiosidad de los viajeros, cuyo cuidado es de saber cosas nuevas, se pregunte quién lo hizo y con qué intención. El Puente, destinado a durar por los siglos del mundo, lo hizo Lácer, famoso por su divino arte. El mismo levantó este templo a los divos Romúleos y a César. Tanto por lo uno como por lo otro, su obra es acreedora del favor celestial.
http://www.terra.es/personal6/estherdurant/sanjulian.htm
El especial emplazamiento del templo (contra el talud del terreno) no facilitó el cambio de configuración y orientación del templo romano y tuvo que permanecer igual durante el culto cristiano.
Templo de San Xiao en Lugo
Otro ejemplo existía al llegar a Lugo hasta este mismo verano del 2004, en el barrio de la ciudad llamado de San Xiao podíamos contemplar la excavación arqueológica de un antiguo templo de planta toscana y que posteriormente fue convertido en la iglesia de San Xiao, modificando su orientación, y añadiéndole un ábside y un vestíbulo de entrada a la planta romana con tres naves. Su emplazamiento, orientación y dimensiones seguían exactamente lo estipulado por Vitruvio en su tratado de arquitectura. (imagen 10-11)

San Xiao de Lugo 

San Xiao de Lugo 
Restos de la planta de cimentación del templo de San Xiao de Lugo, anteriormente templo romano. (expoliado impunemente en agosto 2004) 
El edificio, de planta rectangular, poseía las dimensiones designadas por Vitruvio para las plantas de los templos de estilo toscano, su orientación respecto al cruce de caminos que en el lugar se produce, sigue de manera exacta lo determinado por Vitruvio en sus libros, en el capítulo que describe la orientación de los templos según su emplazamiento. Su puerta se abría hacia el cruce y a oriente, para que los caminantes pudiesen ver la imagen en su trayecto hacía Lucus Augusti.
Templo de San Julián do Camiño en Palas de Rey 
El convento Lucense esta lleno de ejemplos, estos perduran como cristianización de los Lares protectores de los caminos en la imagen de San Julián el hospitalario, quizás uno de los más hermosos por la pervivencia del paisaje y su arquitectura verdadera es el San Julián do Camiño en Palas de Rey. (imagen 12-13)


Templo de San Julián do Camiño en Palas de Rey. Lugo
El santo con sus ropajes antiguos y de color rojo vigila el camino desde la ventana del ábside dirigido a oriente y construido sobre la traza antigua dirigida al camino, al cambiar la orientación pagana por la nueva cristiana hacía al oeste el ábside tuvo que construirse sobre el camino, ocupándolo.
Los peregrinos del siglo XXI reciben a su paso la protección del Santo desde la ventana, protección en su caminar hacía el Finis Terrae.
La innumerable dedicación de templos a San Julián o San Xiao en Galicia, y en especial en la provincia de Lugo, es testimonio de las cimentaciones aun en uso de los antiguos templos romanos que perduran en los caminos del convento lucense. El convento sagrado de Augusto.
Templo de San Julián de Prados en Oviedo
Sin embargo la mejor prueba de lo expuesto se encuentra fuera de Galicia, en Oviedo, allí emplazado en un antiguo cruce de caminos, se erige uno de los templos más populares dedicados al santo, San Julián de Prados, catalogado como “el más antiguo y mayor de los edificios prerrománicos que aún se conservan”. (imagen 14-15-16-17)

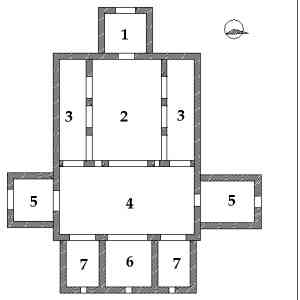
San Julián de Prados 

Planta de San Julián de los Prados.
1. Nártex o vestíbulo 
2. Nave principal 
3. Naves laterales 
4. Transepto o crucero 
5. Dependencias laterales 
6. Abside central 
7. Absides laterales 


Vistas interiores  
El templo se articula en torno a una planta basilical de tres naves, la central más alta y ancha que las laterales. Están separadas por arquerías de tres tramos sobre gruesos pilares. Los espacios que encontramos de oeste a este son los siguientes: vestíbulo, cuerpo de naves, crucero (con dependencias laterales) y cabecera.
http://usuarios.tiscali.es/_poe_/santullano.html
Si pudiésemos realizar un análisis de su cimentación, similar al que se verificó en San Xiao de Lugo, observaríamos que los cuerpos edificados en la edad medía fueron para producir un cambio en su orientación y culto. El nartex o vestíbulo a occidente cambia la entrada de acuerdo con lo estipulado en la corte Carolingia y en contra de la orientación antigua, de manera que las entradas por oriente se cubren por tres ábsides y a la vez se le añaden a norte y a sur dos dependencias auxiliares para convertir la planta toscana original en planta de cruz.
Estas modificaciones eran fácilmente observables en la planta descubierta en San Xiao de Lugo. En Oviedo podemos analizar como el cuerpo de las tres naves centrales guarda exactamente las proporciones 6/5 que Vitruvio establece para los templos de planta toscana. (1) (imagen 18-19)

Planta de Templo romano a la toscana. Según los dibujos de Ortiz y Sanz sobre Vitruvio

Templo Toscano 
El análisis arquitectónico del templo de San Julián de Prados y su comparativa con la planta de templo toscano vitruviano permite afirmar que en este caso concreto la edificación prerrománica fue levantada utilizando la cimentación preexistente de un antiguo templo romano, de planta toscana, emplazado en el cruce de caminos. (imagen 20)

Comparativa de las plantas del templo de San Julián de Prados de estilo prerrománico y de un templo romano estilo toscano (Vitruvio)
Ambas pertenecen a un mismo edificio en su origen. El cambio de culto, de pagano a cristiano, modifica la orientación de acceso (de oriente a occidente) y la estructura de la planta.
Se mantiene la cimentación original romana en las naves centrales y se añaden cuerpos en el perímetro para obtener una planta en cruz.
Se mantiene en las naves centrales la proporción 6/5 descrita por Vitruvio en su tratado de arquitectura.
La arquitectura romana permanece en las cimentaciones de innumerables templos del prerrománico.
Esta construcción resolvió el cambio de orientación, de oriente a poniente, según el nuevo rito cristiano, y el añadido de cuerpos auxiliares en sus cuatro fachadas para la obtención de un crucero.
El ejemplo ovetense puede extrapolarse a muchos de los ejemplos de templos cristianos construidos sobre templos antiguos. Es muy fácil en un primer análisis comprobar que al acceder por el camino que se dirige al templo, quien nos recibe es el ábside de la edificación, cuya misión en el cambio de culto, no fue otra que la cubrición de la puerta original pagana orientada al “Oriente”. 
Los caminos a Galicia muestran su pasado presentando los ábsides de sus templos al caminante.
Encrucijadas en el convento Lucense:
Son varios los cruces de caminos en el territorio lucense que presentan la coincidencia de San Xiao (San Julián) y restos arqueológicos de origen romano.
Algunos de ellos son:
San Xiao de Moraime, Muxia. conjunto Histórico-Artístico, estilo románico del sigloXII, en donde aparecieron restos de una necrópolis romano-cristiana
 
De la época galaico-romano es el yacimiento de San Xiao do Trevo, en Cariño donde existe una ladera cubierta de terrazas y en las que se encuentra una capilla del santo.
 
Por un angosto sendero entre la arboleda se sitúa el viajero ante la iglesia de San Xiao de Poulo, en Outeiro de Arriba, provincia de A Coruña con restos romanos.
Ferrol con una iglesia parroquial, la primitiva iglesia de San Xiao, existente por lo menos desde el siglo XI. La construcción tenía “arcos bóvedas y artesonados”, “con muros gruesos y contrafuertes”, por lo que se piensa que podría ser románica. Esta iglesia fue demolida en el siglo XVIII a causa de las obras del arsenal.
San Xiao de Vea, Gondomar de Abaixo, A Estrada
Castro de San Xiao en San Xiao do Monte, Toques, Melide.
© Carlos Sánchez-Montaña 
(1) Similar proporción 5/6, descrita por Vitruvio, la conservan en su cuerpo central otras plantas del prerrománico asturiano:
-Santa Cristina de Lena.
-San Salvador de Valdedios.
Más informacióen en: http://www.lucusaugusti.net
Comentarios
 Pulsa este icono si opinas que la información está fuera de lugar, no tiene rigor o es de nulo interés.
 Pulsa este icono si opinas que la información está fuera de lugar, no tiene rigor o es de nulo interés.
Tu único clic no la borarrá, pero contribuirá a que la sabiduría del grupo pueda funcionar correctamente.
Si te registras como usuario, podrás añadir comentarios a este artículo.


















Entradas de la Biblioteca Apostólica Vaticana, tomadas de los libros mismos. Creo que no sea búsqueda errada... Pongo sólo los más antiguos. El primero es como él mismo firmaba, y así lo repite su traductor:
Autore : Jacobus, de Voragine, ca. 1229-1298.
Titolo : Legendario de sancti vulgare hystoriado no solamente reuisto & con summa diligentia castigado.
Pubblicazione : [ Stampate in Venatis, per Augustino de Zanni da Portese,
Anno di pubblicazione : 1516 de 29 Aprile ]
Descrizione fisica : 1 f. p., 231 f. num. ill. 31 cm.
Note : Colophon: Finisse le legede de sancti: coposte per el reuelissimo padre fratre Iacobo de Voragine ... Traducte de latino i lingua uulgare per el uenerabile misser dom Nicholao de Manebri ...
Lingua : ita
Collocazione : R.G.Lett.It.II.163
Autore : Hervaeus Natalis, m. 1323.
Titolo : Defensorium contra impugnantes fratres praedicatores quod non vivant secundum vitam apostolicam ...
Pubblicazione : Venetiis Jacobus de Voragine
Anno di pubblicazione : 1516.
Descrizione fisica : Manca.
Note : Edizione 1504 (inscript. editum ... a fr. Jacobo de Voragine, ord. pred. Archiep. Januensi).
Lingua : lat
Collocazione : Rossiana.6139
Autore: Longo, Teodoro.
Titolo : Quattro leggende del b. Iacopo da Voragine volgarizzate nel secolo XIV. (Sunto di un lavoro scritto).
Pubblicazione : [S.l., s.n.,
Anno di pubblicazione : s.d.]
Descrizione fisica : 5 p. 19 cm.
Lingua : ita
Collocazione : R.G.Miscell.III.94(int.3)
http://www.vaticanlibrary.vatlib.it/BAVT/home.asp?LANGUAGE=ita&DPT=gen
Hola a todos:
¿Es posible que la palabra "compita" esté relacionada con el nombre de Complutum (en el sentido de cruce)?
"Hasta el final de la republica estos Lares recibían el nombre de Lares Compitales. La palabra compita significa cruce, y designaba las encrucijadas que delimitaban las propiedades agrícolas entre sí y con los caminos."
Creo que Complutum se encontraba en lo que podría considerarse como un cruce de caminos (además de en el centro de la Península).
Yo he leído en un portal de Alcalá lo siguiente:
"La denominación de "Complutum" parece venir del verbo latino "compluere" que significa confluir o del término "compluo" (confluencia de aguas). El nombre sería bastante apropiado puesto que la población primitiva se encontraría en la "confluencia" de los ríos Henares y Camarmilla."
http://www.portal-local.com/tuho_his_roma.asp
También lo he visto en más sitios pero en este es donde mejor lo explican.
Saludos.
Hay 2 comentarios.
1